Save
Ask
Tour
Hide
$320,000
2 Days On Site
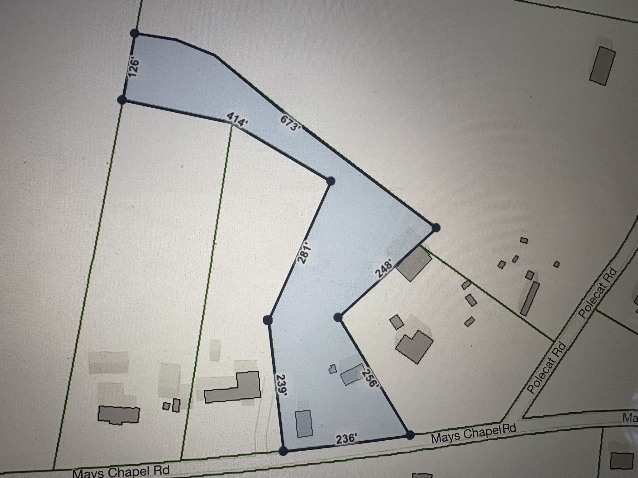
1744 Mays Chapel RdMount Juliet, TN 37122
For Sale|Land|Active
Subdivision:
Crabtree
County:
Wilson
Call Now: (615) 444-0072
Is this the listing for you? We can help make it yours.
(615) 444-0072



Save
Ask
Tour
Hide
Mortgage Calculator
Monthly Payment (Est.)
$1,460Calculator powered by Showcase IDX, a Constellation1 Company. Copyright ©2026 Information is deemed reliable but not guaranteed.
Land near Old Hickory Lake, public boat ramp and Cedar Creek Yacht Club. There is an older mobile home on property. Land has electric, water and septic. Sold AS IS
Save
Ask
Tour
Hide
Listing Snapshot
Price
$320,000
Days On Site
2 Days
Bedrooms
N/A
Inside Area (SqFt)
0 sqft
Total Baths
N/A
Full Baths
N/A
Partial Baths
N/A
Lot Size
2.62 Acres
Year Built
N/A
MLS® Number
3072767
Status
Active
Property Tax
$435
HOA/Condo/Coop Fees
N/A
Sq Ft Source
N/A
Friends & Family
Recent Activity
| 2 days ago | Listing first seen on site | |
| 2 days ago | Listing updated with changes from the MLS® |
General Features
Acres
2.62
Additional Property Use
Residential
Sewer
Septic Tank
Special Circumstances
Standard
Utilities
Water Available
Water Source
Public
Zoning
Res
Save
Ask
Tour
Hide
Exterior Features
Lot Features
Cleared
Road Frontage
County Road
Community Features
Roads
Asphalt
Schools
School District
Unknown
Elementary School
West Elementary
Middle School
West Wilson Middle School
High School
Mt. Juliet High School
Listing courtesy of Benchmark Realty, LLC
Listings courtesy of Realtracs as distributed by MLS GRID
Based on information submitted to the MLS GRID as of 2026-01-08 05:40 PM UTC. All data is obtained from various sources and may not have been verified by broker or MLS GRID. Supplied Open House Information is subject to change without notice. All information should be independently reviewed and verified for accuracy. Properties may or may not be listed by the office/agent presenting the information.
The Digital Millennium Copyright Act of 1998, 17 U.S.C. § 512 (the “DMCA”) provides recourse for copyright owners who believe that material appearing on the Internet infringes their rights under U.S. copyright law. If you believe in good faith that any content or material made available in connection with our website or services infringes your copyright, you (or your agent) may send us a notice requesting that the content or material be removed, or access to it blocked. Notices must be sent in writing by email to [email protected].
The DMCA requires that your notice of alleged copyright infringement include the following information: (1) description of the copyrighted work that is the subject of claimed infringement; (2) description of the alleged infringing content and information sufficient to permit us to locate the content; (3) contact information for you, including your address, telephone number and email address; (4) a statement by you that you have a good faith belief that the content in the manner complained of is not authorized by the copyright owner, or its agent, or by the operation of any law; (5) a statement by you, signed under penalty of perjury, that the information in the notification is accurate and that you have the authority to enforce the copyrights that are claimed to be infringed; and (6) a physical or electronic signature of the copyright owner or a person authorized to act on the copyright owner’s behalf. Failure to include all of the above information may result in the delay of the processing of your complaint.
Listings courtesy of Realtracs as distributed by MLS GRID
Based on information submitted to the MLS GRID as of 2026-01-08 05:40 PM UTC. All data is obtained from various sources and may not have been verified by broker or MLS GRID. Supplied Open House Information is subject to change without notice. All information should be independently reviewed and verified for accuracy. Properties may or may not be listed by the office/agent presenting the information.
The Digital Millennium Copyright Act of 1998, 17 U.S.C. § 512 (the “DMCA”) provides recourse for copyright owners who believe that material appearing on the Internet infringes their rights under U.S. copyright law. If you believe in good faith that any content or material made available in connection with our website or services infringes your copyright, you (or your agent) may send us a notice requesting that the content or material be removed, or access to it blocked. Notices must be sent in writing by email to [email protected].
The DMCA requires that your notice of alleged copyright infringement include the following information: (1) description of the copyrighted work that is the subject of claimed infringement; (2) description of the alleged infringing content and information sufficient to permit us to locate the content; (3) contact information for you, including your address, telephone number and email address; (4) a statement by you that you have a good faith belief that the content in the manner complained of is not authorized by the copyright owner, or its agent, or by the operation of any law; (5) a statement by you, signed under penalty of perjury, that the information in the notification is accurate and that you have the authority to enforce the copyrights that are claimed to be infringed; and (6) a physical or electronic signature of the copyright owner or a person authorized to act on the copyright owner’s behalf. Failure to include all of the above information may result in the delay of the processing of your complaint.
Neighborhood & Commute
Source: Walkscore
Disclosure: Community information and market data powered by Constellation Data Labs. Information is deemed reliable but not guaranteed.
Save
Ask
Tour
Hide

Did you know? You can invite friends and family to your search. They can join your search, rate and discuss listings with you.