6072 Lamontville RoadDecatur, TN 37322




Mortgage Calculator
Monthly Payment (Est.)
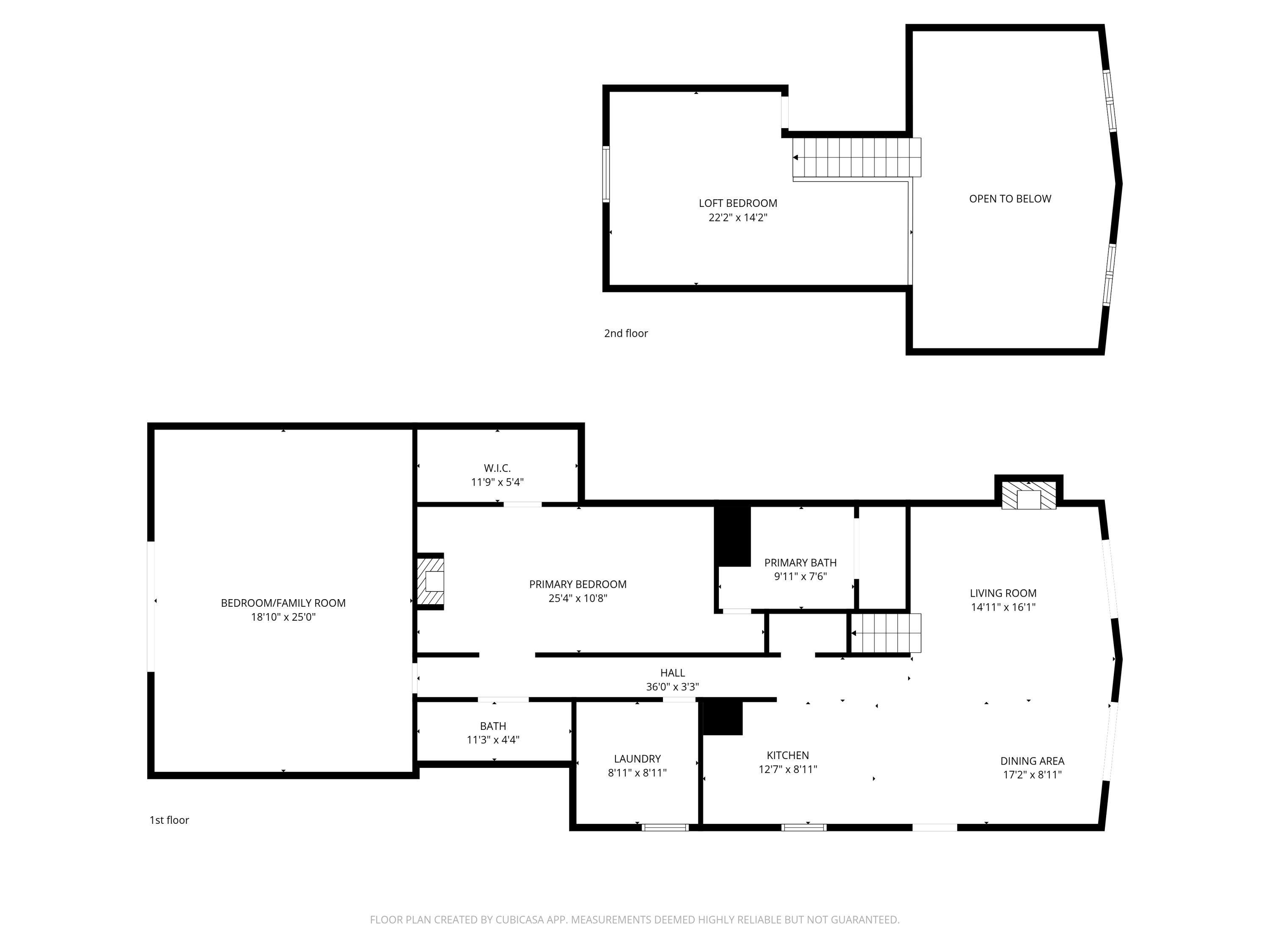
$2,623Beautifully updated 3-bedroom, 2-bath home on the river featuring a private dock with an electric boat lift. This property combines modern comfort with peaceful waterfront living. Inside, you'll find and updated kitchen with granite countertops, cabinets, and stainless steel appliances. The home showcases updated flooring, renovated bathrooms, and fresh vinyl siding, creating a bright and welcoming space. Major improvements include a new roof, HVAC system, mini-split unit, septic, concrete driveway, and 3 car garage with a 100 amp sub panel and workshop. High-speed internet adds convenience for work or streaming. Enjoy fishing, boating, and relaxing from your own backyard, all while being just minutes from I-75. Move-in ready and designed for low-maintenance living, this home offers the perfect balance of modern upgrades, efficiency, and riverside charm.
| yesterday | Listing first seen on site | |
| yesterday | Listing updated with changes from the MLS® |
IDX information is provided exclusively for consumers’ personal, non-commercial use, and may not be used for any purpose other than to identify prospective properties consumers may be interested in purchasing. The data on this site is deemed reliable but is not guaranteed accurate by the MLS. Source: Greater Chattanooga MLS

Did you know? You can invite friends and family to your search. They can join your search, rate and discuss listings with you.